Bilocale in vendita

Milano, Via Privata Raffaello Morghen - Bovisa
€ 340.000
2 locali 2 locali
60 Mq 60 Mq
1 bagno 1 bagno

Bilocale in vendita

Milano, Via Privata Raffaello Morghen - Bovisa

Descrizione annuncio

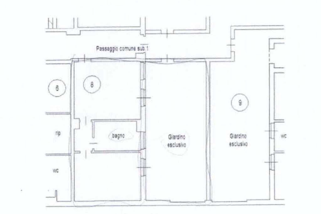
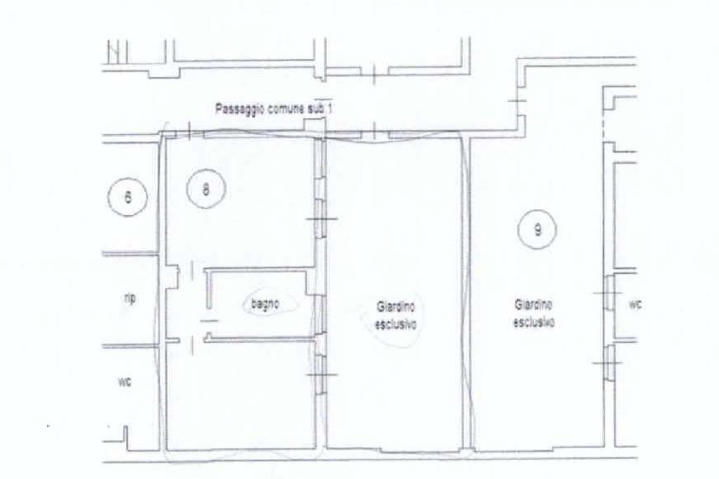
In via Morghen, nel vivace quartiere Bovisa di Milano, proponiamo in vendita un ufficio di 60 mq con giardino privato di 50 mq, ideale per professionisti, studi tecnici o piccole imprese che cercano uno spazio moderno e funzionale.

L’immobile, situato in un contesto recente e ben curato, è composto da due locali luminosi, bagno con doccia e accesso diretto al giardino di proprietà, perfetto per creare una zona relax o uno spazio verde riservato ai clienti.
Le ampie finestre con tapparelle elettriche e zanzariere garantiscono un’ottima luminosità naturale e un comfort abitativo elevato.

La posizione è strategica: vicina alla stazione Bovisa-Politecnico, alle principali linee di trasporto pubblico e a tutti i servizi della zona (bar, ristoranti, negozi e supermercati).

Possibilità di cambio destinazione d’uso da ufficio a residenziale, ideale per chi desidera realizzare un appartamento moderno con giardino in una delle aree più dinamiche e in crescita di Milano.

Completano la proposta un ampio box di pertinenza, dotato di basculante motorizzato, doppie serrature e sistema di allarme, acquistabile separatamente al prezzo di € 50.000.

Mostra tutto

Nelle vicinanze

Trasporto pubblico Trasporto pubblico
Affori Centro
Affori Centro
1,3 Km
Dergano
Dergano
1,3 Km
Milano Bovisa
Milano Bovisa
410 m
stazione di Milano Villapizzone
stazione di Milano Villapizzone
990 m
Bausan
Bausan
390 m
Ricariche auto elettriche Ricariche auto elettriche
A2A PoliMi Bovisa
170 m
Centro Commerciale Metropoli
1,9 Km
MediaWorld Certosa
2,0 Km
Autoparco Fiorenza Deposito Giudìziario
2,1 Km
Iper Portello
2,1 Km
Scuole Scuole
Politecnico di Milano, Campus Bovisa Candiani
330 m
Politecnico di Milano, Campus Bovisa Lambruschini
520 m
Politecnico di Milano, Campus Bovisa La Masa
660 m
Maffucci
800 m
Marie Curie
900 m
Farmacia Farmacia
cavalli d.ssa Albertina
240 m
Bovisa
420 m
Farmacia San Luca
670 m
Farmacia
1,1 Km
Parafarmacia Conad
1,1 Km
Ospedali Ospedali
Poliambulatorio Cesare Pozzo
730 m
Ospedale Niguarda Cà Granda
1,9 Km
Ospedale dei Bambini "Vittore Buzzi"
2,2 Km
Humanitas San Pio X
2,4 Km
Istituto Clinico Sant'Ambrogio
2,4 Km
Supermercati Supermercati
Simply Market
450 m
Penny
490 m
Il Bio a Dergano
960 m
Esselunga SottoCasa
1,1 Km
Conad City
1,1 Km
Negozi Negozi
Colori & Sapori
250 m
Aydan
260 m
Il Paradiso del Pane
310 m
Armagni Milena
440 m
A&M Moda
510 m
Bar Bar
nán shān Nanshan Bar
70 m
Il Monello
80 m
Non solo Caffè
130 m
Civico 131
290 m
nacondo
350 m
Ristoranti Ristoranti
Ristorante Durando
80 m
Ovosodo
270 m
La Scighera
280 m
Spirit de Milan
290 m
Charlie Brown
310 m
Mostra tutto

Caratteristiche

Rif.:
61137607
Piano:
Terra di 4
Totale piani:
4
Box:
1
Camere da letto:
1
Arredamento:
Assente
Mostra tutto
Prezzo Prezzo
€ 340.000
Prezzo box Prezzo box
€ 50.000
Rata mutuo Rata mutuo
€ 1.603 / mese
Spese annue Spese annue
€ 800
Proponi il tuo prezzoProponi il tuo prezzo

Classe Energetica

E
E
E
E
E
E
E
E
E
EP globale non rinnovabile:
128.53 kW h/m² anno
EP invernale del fabbricato:
EP estiva del fabbricato:
Anno di costruzione:
2000
Riscaldamento:
Autonomo
Tipo impianto:
A radiatori
Tipo alimentazione:
Metano

Ti interessa visionare l'immobile?

Fissa un appuntamento  Fissa un appuntamento

Richiedi informazioni

Clicca su Leggi per aprire l'informativa
* Questi campi sono obbligatori

Calcola il tuo mutuo

Semplice e senza impegno
Anticipo

( % )
Mutuo

( % )

pochi semplici passi

inserisci i tuoi dati
Questionario completato
Grazie per aver richiesto un appuntamento senza impegno con un nostro Consulente del Credito e Assicurativo.

Hai inserito correttamente tutti i dati necessari e a breve riceverai una e-mail con un link da convalidare per inviare i tuoi dati.
Affiliato
Studio Bovisa Sas
Via Degli Imbriani, 55 20158 Milano (MI)

Il nostro staff


  • Davide Costante Moiraghi
    Affiliato

  • Antonella Cennamo
    Affiliata

  • Filippo Cusmà Piccione
    Collaboratore

  • Giulia Penone
    Collaboratrice
Via Degli Imbriani, 55 20158 Milano (MI)
Zona: Bovisa-Zona 7
Mostra su mappa
Orari: Da lunedì a venerdì 9.30-12.30, 15.00-19:30; sabato 9.30-12.30-14.30-17.00
Affiliato
Studio Bovisa Sas
Via Degli Imbriani, 55 20158 Milano (MI)

2025 Tecnocasa Franchising S.p.A. - P. IVA 08365160152 - Via Monte Bianco 60/A 20089 Rozzano (MI). Ogni agenzia ha un proprio titolare ed è autonoma. Privacy policy | Policy utilizzo | Cookie policy